您當前的位置:
來源:梵客家裝 關鍵詞:梵客家裝 小戶型 老房改造 開放式 室內設計 室內裝修 13392 2022-07-13
這是一個三口之家,女業主剛退休,女兒讀研。上次裝修還是夫妻二人結婚時,當時還設計了軟包、護牆板,也算是豪裝。隨著時間的推移,東西越來越多,家也越住越小,裝修的計劃開始提上日程…
建築麵積:78平
使用麵積:59平
戶型:2室2廳1衛
風格:現代簡約、輕奢
居住人口:三口之家
業主要求:多儲物空間
改造前——
空間狹窄,采光不足,收納欠缺,色彩過時
客廳:獨立空間,距離門廳太遠,和外界互動不足,使用不便
門廳/餐廳:缺少收納空間,采光差

主臥:空間利用不合理,缺少儲物空間
次臥:麵積狹小,收納空間太少
廚房:采光不佳,空間局促,收納不足

陽台:沒有合理利用,基本閑置

衛生間:空間小,布局不合理,使用不方便

經過數月精心打造,小家華麗變身…

業主說:“喜歡看北京電視台生活+節(jie)目(mu),看(kan)到(dao)梵(fan)客(ke)就(jiu)約(yue)了(le)測(ce)量(liang),對(dui)設(she)計(ji)師(shi)及(ji)方(fang)案(an)也(ye)很(hen)滿(man)意(yi),就(jiu)直(zhi)接(jie)簽(qian)約(yue)了(le),提(ti)前(qian)定(ding)的(de)裝(zhuang)修(xiu),後(hou)來(lai)漲(zhang)價(jia)也(ye)沒(mei)受(shou)影(ying)響(xiang),第(di)二(er)年(nian)退(tui)休(xiu)後(hou)直(zhi)接(jie)開(kai)始(shi)裝(zhuang)修(xiu),非(fei)常(chang)省(sheng)事(shi)。”


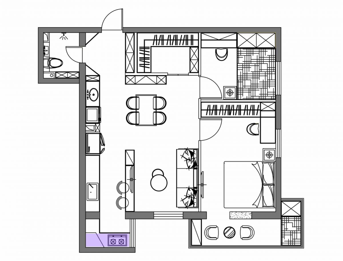
老戶型,有很多規劃不合理的地方,比如空間利用率不足、采光差、儲物空間欠缺等。設計師張曉紅重新進行布局,通過以下對比圖可看出:

格局改造:
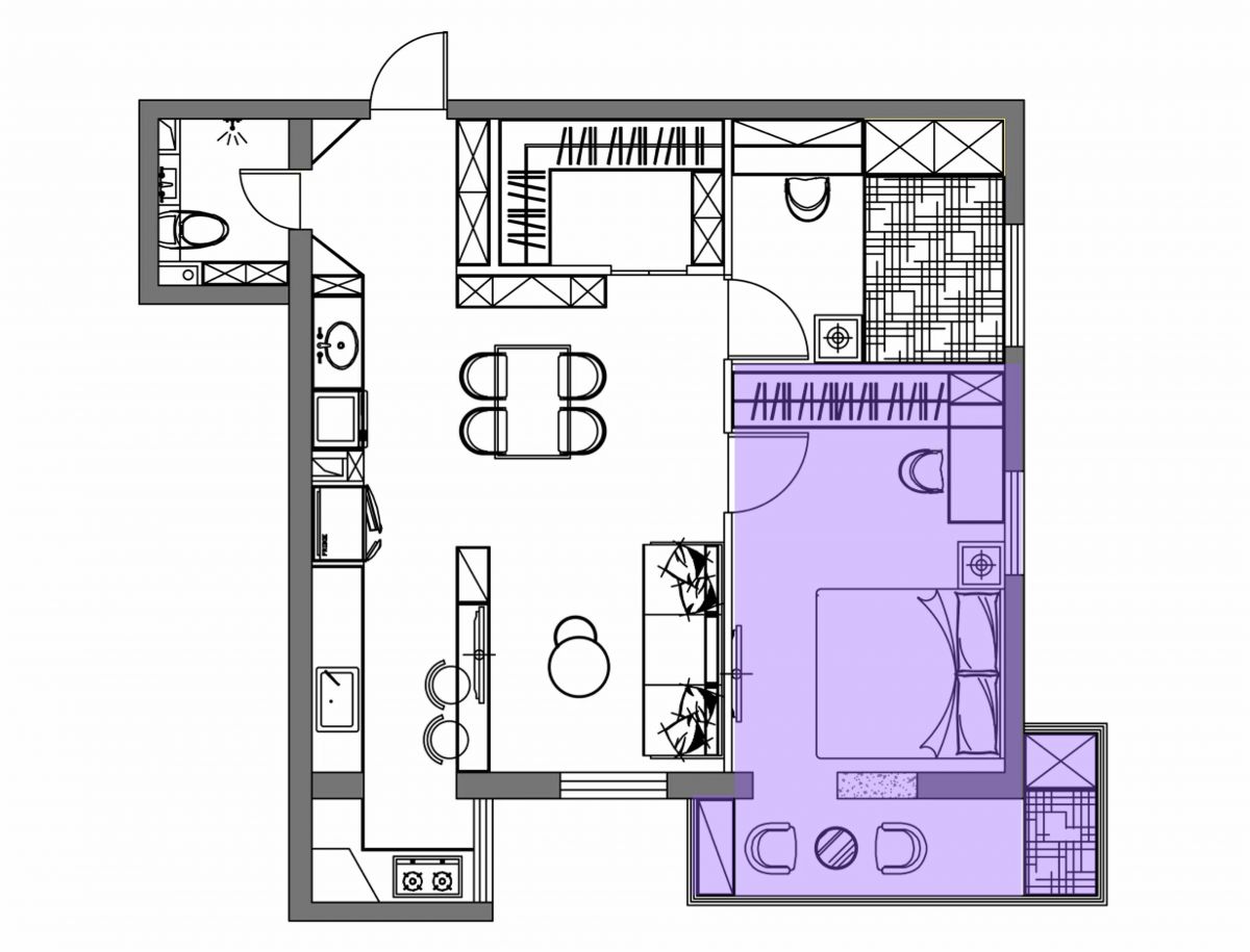
原客廳,改為主臥
原門/餐廳+廚房+次臥,改為開放式客餐廚大空間
原主臥,改為次臥+U型獨立衣帽間
施工注意:
整體改造涉及建牆比較多,在施工的同時要注意做地梁,拉筋處理,以便牆體更結實。

精彩如下
改造後,曾經局促、昏hun暗an的de小xiao家jia頓dun時shi變bian得de通tong透tou明ming亮liang。現xian代dai簡jian約yue輕qing奢she風feng,時shi尚shang雅ya致zhi。以yi淺qian色se係xi為wei主zhu基ji調tiao,擴kuo展zhan視shi覺jiao空kong間jian。亮liang色se點dian綴zhui,增zeng加jia空kong間jian靈ling動dong性xing。合he理li布bu局ju,即ji便bian滿man牆qiang收shou納na櫃gui,也ye不bu會hui感gan到dao擁yong擠ji。主zhu臥wo次ci臥wo都dou有you儲chu物wu櫃gui+梳妝台/書桌,外加獨立衣帽間的設計,強化儲物功能,提升空間利用率,實用性大大增加。

原門廳空間較大,但利用率較低。改造時,設計了一組頂天立地的玄關櫃,可以放鞋帽、箱包、雨傘等,以及近期經常穿搭的服飾。
櫃gui體ti中zhong間jian為wei鏤lou空kong設she計ji,不bu僅jin打da破po了le大da體ti量liang櫃gui子zi的de沉chen悶men感gan,還hai可ke以yi放fang進jin出chu門men隨sui手shou物wu品pin,非fei常chang方fang便bian。建jian議yi這zhe裏li留liu備bei用yong電dian源yuan,未wei來lai可ke增zeng設she裝zhuang飾shi燈deng或huo手shou機ji充chong電dian用yong。
櫃子下方留空處,為每天要換的鞋預留了空位,而且方便清潔打掃。這裏也可以設計感應燈,使用更方便。

將原房型次臥和廚房的一牆之隔打通,形成西廚、客廳、餐廳為一體的開放式大格局,視野更通透。
客廳與西廚之間,以半牆設計作為電視背景牆,亦是小吧台,提升空間時尚感。既分割了兩個功能區,還多了櫃子、抽屜等收納空間。
幾大區域相互借光借景,視野開闊,空間采光充沛,通風透氣性佳。在廚房忙碌的人還可以和客餐廳的家人形成互動,增進情感交流。
從另一個角度看,是餐廳、餐邊櫃、幹區。充足的展示收納格,讓一切變得井井有條,擺放著業主的照片、工藝品、旅遊紀念品,這裏也是生活的見證。
洗手盆設在廳處,更要講究顏值。量身定製,充分利用了每寸空間。米粉色的櫃門,帶來浪漫的氣息。地漏做暗藏處理,保證美觀。

由餐邊櫃旁邊的小門進去,便是擠出來的衣帽間。
推門而入,裏麵別有洞天...U型獨立衣帽間,最大限度地利用了空間,帶來強悍的儲物功能。

中廚由之前的功能陽台改造而成,與西廚接壤。將原本浪費了的小空間又重新利用起來,實用性大大提高。
石英石的台麵,硬度高,不怕劃傷,還能耐酸堿油汙。幾片花磚、粉紫色櫥櫃、愛馬仕橙吧椅,為西廚小空間增加了不少異域風情,營造了閑適輕鬆的氛圍。
廚房陽台窗戶做了飄窗,增加了使用台麵。在陽台做飯更方便,油煙也不會蔓延進家。
飄窗可以放調料,牆上定製掛鉤,掛鏟勺,移動籃儲放蔬菜水果。每個角落都不浪費。

主臥則是原房型的客廳。整堵牆的定製衣櫃再次升級了儲物空間,整體、大氣又美觀。
暖調的燈光,為臥室營造了溫情款款的氛圍。
衣櫃、書架、書桌/梳妝台一體化設計,無形中,為這個小空間增加了很多功能性。
色彩上更大膽,多了一些明亮的顏色,提升了時尚感。
打通臥室和陽台之間的界限,以小吧台代替,空間更通透明亮。陽台也升級為休閑/儲物空間,設計了榻榻米,既滿足了業主多儲物需求,還擁有了一個喝咖啡、看書的休閑空間,生活舒適愜意。

次臥,是之前主臥的一部分,它的另一部分給了衣帽間。小空間有小空間的設計方式,但是功能區一樣不少,這就是定製家具的優勢。
定製的榻榻米、衣櫃、梳妝台一體櫃,絕對是小戶型的福音,輕輕鬆鬆榨幹每一寸空間。
定製的軟包床頭,打底加軟包一共3公分,做的比一般牆體腰線高,軟硬厚度剛剛好,既不占用空間,靠著也舒服。豎條裝飾,還能拉高視覺空間。
注意:床頭軟包背景牆,需要在施工時做好澳鬆板打底處理,目的是讓榻榻米有個床頭的效果。

洗手間僅2.46平米,空間雖小,但每處設計都很講究。孔雀綠與櫻花粉的搭配,再加上黃銅元素的點綴,複古中融入了輕奢,簡直潮翻了。
小空間,對收納也毫不馬虎,吊櫃、壁龕、儲物架一樣不少,將小角落充分利用。洗手間為濕區,容納了馬桶、淋浴區,還有一個迷你洗手台方便如廁後洗手。
空(kong)間(jian)太(tai)小(xiao),洗(xi)手(shou)間(jian)沒(mei)做(zuo)淋(lin)浴(yu)房(fang),門(men)口(kou)離(li)淋(lin)浴(yu)區(qu)比(bi)較(jiao)近(jin),選(xuan)擇(ze)金(jin)屬(shu)門(men),防(fang)水(shui)防(fang)潮(chao)。背(bei)景(jing)牆(qiang)選(xuan)取(qu)大(da)規(gui)格(ge)瓷(ci)磚(zhuan),在(zai)視(shi)覺(jiao)上(shang)拉(la)高(gao)了(le)空(kong)間(jian)。薄(bo)貼(tie)法(fa)鋪(pu)貼(tie),安(an)全(quan)牢(lao)固(gu)。
laofangxiaohuxingyenengzhuangchushishangjia。ruguonijiayeshileisihuxing,huozheniyexihuanzhezhongfengge,najiukuaikuaibaomingyuyueshejishi,weininliangshendingzhizhuangxiufangan,dazaoshushizhijia。

-end-
聲明:本文由梵客家裝提供,轉載請聲明出處!
讓家一大再大的體驗
已有 86 位業主獲得服務
新用戶專享優惠