您當前的位置:
來源:梵客家裝 關鍵詞:梵客家裝 格局改造 老房改造 小戶型 室內設計 室內裝修 18913 2022-07-13
zheshiyigesankouzhijia,weilehaizishangxue,yezhuzhihuanlezhetaoxuequfang,bingtongguopengyoujieshao,zhaodaofankejiazhuangdeshejishibaishiweilaoshi。qishizuichu,yezhuyeduibiguoqitazhuangxiugongsi,danshifankedefuwujibailaoshidefangan,chedidadongleyezhu…

建築麵積:90平
使用麵積:68平
房型結構:2室1廳1衛
裝修風格:現代簡約
居住人口:三口之家
業主要求:收納空間多
youyuxiaoquweizhishouxian,yezhudangshizaimaifangshimeiyoujingxintiaoxuanhuxing,yebulejiehuxingjiegou。zhuangxiushicaifaxianhuxingyouquexian,biruchufangmenzhiduiruhumen,shijiaobuhaoyouyingxiangketingbuju;衛生間較大,但功能不合理;臥室門正對衛生間門等。
白老師經過現場實地測量,初步確定改造方案。第一輪溝通就出了3套設計方案,初步確定改造內容。後期溝通中反複推敲細節,拿捏尺寸,最終確定施工方案。從最初見麵到定稿,一共設計了3稿,隻用了15天。

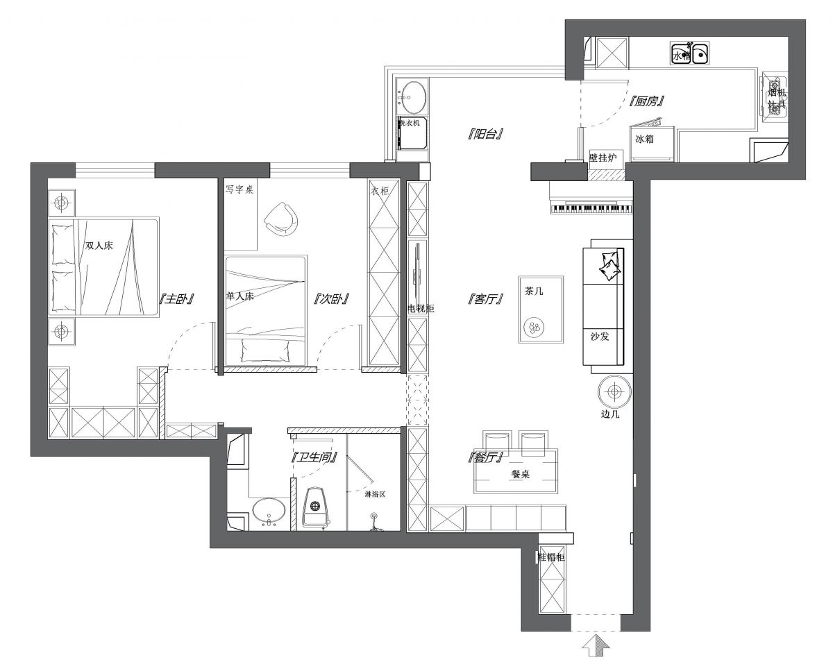
為了空間更合理地利用,規避戶型缺陷,提升使用舒適度,白老師做了如下調整,通過原始平麵圖和平麵布置圖,即可看出不同:
原始平麵圖 ↓

平麵布置圖 ↓

解決方案:
廚房門改動
次臥門改動
衛生間幹濕分離
主臥室門改動,增加衣帽間
廚房門改動:原(yuan)結(jie)構(gou)中(zhong),入(ru)戶(hu)門(men)正(zheng)對(dui)廚(chu)房(fang)門(men),視(shi)覺(jiao)不(bu)美(mei)觀(guan),進(jin)入(ru)廚(chu)房(fang)的(de)動(dong)線(xian)單(dan)一(yi)且(qie)被(bei)固(gu)定(ding),客(ke)廳(ting)布(bu)局(ju)受(shou)限(xian),沙(sha)發(fa)和(he)電(dian)視(shi)的(de)位(wei)置(zhi)被(bei)迫(po)固(gu)定(ding)。而(er)且(qie)廚(chu)房(fang)采(cai)光(guang)受(shou)限(xian),客(ke)廳(ting)陽(yang)台(tai)管(guan)線(xian)交(jiao)錯(cuo),利(li)用(yong)率(lv)低(di),變(bian)成(cheng)了(le)雜(za)物(wu)陽(yang)台(tai),也(ye)影(ying)響(xiang)了(le)廚(chu)房(fang)窗(chuang)戶(hu)的(de)使(shi)用(yong)。通(tong)過(guo)改(gai)變(bian)廚(chu)房(fang)門(men)的(de)開(kai)啟(qi)位(wei)置(zhi),增(zeng)加(jia)了(le)廚(chu)房(fang)空(kong)間(jian)的(de)功(gong)能(neng)性(xing)和(he)利(li)用(yong)率(lv),動(dong)線(xian)的(de)調(tiao)整(zheng),使(shi)沙(sha)發(fa)和(he)電(dian)視(shi)的(de)擺(bai)放(fang)更(geng)加(jia)合(he)理(li),並(bing)極(ji)大(da)地(di)豐(feng)富(fu)了(le)客(ke)餐(can)廳(ting)的(de)收(shou)納(na)功(gong)能(neng),客(ke)廳(ting)陽(yang)台(tai)也(ye)得(de)到(dao)了(le)更(geng)好(hao)的(de)利(li)用(yong)。
次臥門改動:原(yuan)結(jie)構(gou)中(zhong),因(yin)次(ci)臥(wo)門(men)開(kai)啟(qi)的(de)位(wei)置(zhi),導(dao)致(zhi)次(ci)臥(wo)的(de)收(shou)納(na)功(gong)能(neng)受(shou)限(xian)。次(ci)臥(wo)門(men)正(zheng)對(dui)衛(wei)生(sheng)間(jian)門(men),不(bu)雅(ya)觀(guan)。調(tiao)整(zheng)次(ci)臥(wo)門(men)的(de)位(wei)置(zhi)後(hou),次(ci)臥(wo)的(de)衣(yi)櫃(gui)做(zuo)了(le)整(zheng)麵(mian)牆(qiang),收(shou)納(na)能(neng)力(li)直(zhi)接(jie)提(ti)升(sheng)一(yi)倍(bei)。
衛生間幹濕分離:yuanjiegouzhong,weishengjiandekongjianxiangduijiaoda,danshigongnengbujubuheli,xishoupen,zuobian,linyuqu,xiyijibaifangwuxu,qiewuganshifenqu。tongguozengjiaqiangtigeduan,jiangxishoupendulichulai,zuoweiganqu。zuobianhelinyuquzhijianshiyongboligeduan,zaicifenqu,dadaosanfenlidehuafen,zaitishengshiyonglvdetongshi,yekejianguduorentongshishiyongdebianli。
主臥室門改動,並增加衣帽間:yuanjiegouzhong,guodaodejintouzhengduizhuwomen,shounadanyi,yiguibaifangguoyuchanggui,congzhengtishangkan,langfeikongjianduo。tongguogaibianmendeweizhi,tiaozhengjiegou,xinjianqiangtiyeyouxuanguanzuoyong,huanjieguodaozhengduiwoshimendeganga。zhuwoneiqianyimaojian,tishengshounagongneng,manzunvzhuxuqiu,menkouchuliyongaocao,zuoboshugui,fengfushounafenqu。
動線圖 ↓

多條動線重合處,暢通無阻礙
主動線以直線為主,轉折較少
家務動線清晰,重複區域較少
訪客動線主要集中在客廳,對家人影響小
牆體拆除圖 ↓

新建牆體圖 ↓

設計師最滿意:廚房、衛生間的改造
業主最滿意:衣帽間,廚房、衛生間幹濕分區的改造


↑ 衛生間三分區設計,使用更方便,彼此互不幹擾
↓ 廚房合理規劃,充分利用空間,提高烹飪效率


從開工到完工,共65個工作日,業主對裝修效果非常滿意。下麵,就為大家詳細介紹 ↓
白老師在實地測量時,總結出以下問題:
戶型結構有缺陷
空間沒有得到充分利用
設計及材料比較老舊
整體欠缺美觀度和實用性

經過3輪設計方案及15天的溝通,最終,業主選擇了梵客家裝。我們開工了!

chaichushi,yaoxianduankaidianlu,yonglinshishigongdianxiang。baohuhaoranqibiao,guanbiyongqizongfamen,jianzhashifouyoulouqixianxiang。zhuyiyongshui,fangzhishuishendaolouxia。yanjinchaichushejianquandejiegouqiangti。chaichudelajiyaoduifangzhengqi,shikebaozhenggongdizhengjie。

shuidianshigongjieduan,zouxianyaozunxunhengpingshuzhideguifan,pailiezhengqi,hongseqiangdian,lanseruodian。jiaochachuyongxibozhichanraogekai,bimianganrao。quebaodianshangshuixia,yanjinshuidiantongcao。xiantoubixubaotoudajuan。

次ci臥wo門men改gai動dong時shi,需xu要yao新xin建jian牆qiang體ti。考kao慮lv到dao承cheng重zhong問wen題ti,一yi般ban新xin建jian牆qiang體ti建jian議yi做zuo輕qing質zhi隔ge牆qiang,用yong比bi較jiao輕qing質zhi的de材cai料liao。新xin建jian牆qiang體ti外wai側ce在zai抹mo水shui泥ni前qian要yao加jia掛gua鐵tie絲si網wang,以yi增zeng加jia牆qiang體ti和he外wai麵mian貼tie瓷ci磚zhuan的de穩wen固gu性xing,避bi免mian新xin建jian輕qing體ti牆qiang出chu現xian開kai裂lie、抹灰層出現脫落等現象。
地暖管安裝要根據不同房間的保溫、散熱狀況、房間功能、家具擺放、地麵鋪材選擇、熱源可調節等狀況,有針對性地進行地板采暖係統設計。建議選擇性能優異的管材和保溫材料,保溫效果好有助於節能。

鋪地磚時,邊鋪貼邊用水平儀或靠尺找平檢查,發現問題及時修正;。磚麵上溢出水泥砂漿用抹布擦淨。勾縫時不能遺漏。 鋪貼牆磚時,自下而上進行整,必須當天完 成,或者將接頭處留在轉角處。磚的最下麵一層應留到地磚鋪貼完成後,再補貼。
還要注意,空鼓率、平整度、垂直度、陰陽角、接縫等都是貼磚驗收的重點。鋪完地磚,工人要做美縫處理,表麵會光滑如瓷,視覺感更好,而且不易藏汙納垢。

牆麵施工非常重要,要經過牆麵基層處理、塗布一遍環保牆固、批刮一遍底層石膏基、粘貼牆麵專用抗裂網格、批刮兩遍膩子粉、塗布一遍底漆、塗布兩遍麵漆七大步驟。乳膠漆塗刷完之後4個小時就會幹燥,但幹燥的漆膜還沒有達到一定的硬度,這就要養護,7-10天之內不要有擦洗或任何接觸牆麵的行為。

家(jia)裏(li)東(dong)西(xi)比(bi)較(jiao)多(duo),需(xu)要(yao)分(fen)門(men)別(bie)類(lei)做(zuo)收(shou)納(na),才(cai)能(neng)整(zheng)齊(qi)有(you)序(xu)。定(ding)製(zhi)家(jia)具(ju)因(yin)人(ren)而(er)異(yi)的(de)內(nei)部(bu)細(xi)分(fen),更(geng)能(neng)滿(man)足(zu)業(ye)主(zhu)的(de)需(xu)求(qiu),還(hai)能(neng)充(chong)分(fen)利(li)用(yong)尷(gan)尬(ga)角(jiao)落(luo),將(jiang)空(kong)間(jian)利(li)用(yong)做(zuo)到(dao)最(zui)大(da)化(hua)。
玄關櫃、電視背景牆、餐邊櫃、衣櫃等,都設計了定製家具,大大提升了儲物能力,讓小家煥然一新。最後,一起看看裝修成果吧~
↑ 玄關櫃,小區域大作用。這裏不僅有掛衣處、衣(yi)帽(mao)鏡(jing),還(hai)有(you)鞋(xie)凳(deng),換(huan)鞋(xie)的(de)時(shi)候(hou)可(ke)以(yi)坐(zuo)在(zai)這(zhe)裏(li)。櫃(gui)體(ti)中(zhong)間(jian)的(de)鏤(lou)空(kong)設(she)計(ji),放(fang)進(jin)出(chu)門(men)隨(sui)手(shou)物(wu)品(pin)。櫃(gui)子(zi)下(xia)方(fang)留(liu)空(kong)處(chu),為(wei)每(mei)天(tian)要(yao)換(huan)的(de)鞋(xie)預(yu)留(liu)了(le)空(kong)位(wei),而(er)且(qie)方(fang)便(bian)清(qing)潔(jie)打(da)掃(sao)。
↑ 客廳,收納櫃與電視背景牆結合,將儲物做到極致。抽屜以及不同大小的櫃子,方便各類物品的存放。嵌入式空調的設計,更整體統一 ,提升空間整潔度。
↑ 餐廳,利用兩堵牆打造的L型餐邊櫃,大大延伸儲物功能。卡座設計,現代、時尚,有一種小資情調,提升餐廳的浪漫情懷。卡座下方還能存放物品,再次強化收納功能。
↑ 次臥,頂天立地的衣櫃設計,整體又美觀,每寸空間都不浪費。沒有縫隙,不易藏汙納垢,打理也很方便。
↑ 廚房,依據空間布局設計的U型櫥櫃,擁有獨立備餐空間,洗滌、備餐、烹飪一氣嗬成,下廚高效便捷。吊櫃與地櫃雙向收納,大大擴充了儲物功能。
↑ 陽台,被規劃為洗衣區,嵌入式洗衣機、洗手台、收納櫃一體化設計,整體又美觀,洗晾衣服也更方便。
戶型不合理怎麼破?有梵客專業設計師為你支招,報名預約設計師,為您量身定製裝修方案,打造高品質的舒適家。

-end-
聲明:本文由梵客家裝提供,轉載請聲明出處!
讓家一大再大的體驗
已有 86 位業主獲得服務
新用戶專享優惠